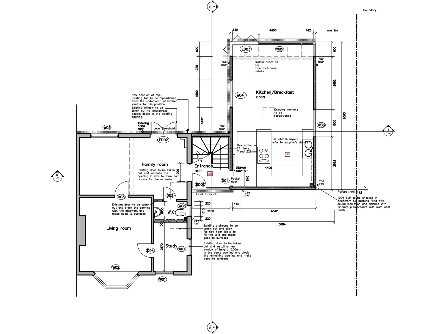
A double storey extension to a semi-detached property was proposed in SIPS (Structural insulated panels) to give excellent thermal insulation to the house.
The entrance of the house was repositioned in the new extension to create the focal point on the approach of the house. A new staircase was proposed in the new entrance hall to access master bedroom with dressing and ensuite on the first floor. A large window on the staircase gives an opportunity the view of their lovely garden from the landing level.
Ground floor consists of a large kitchen with sloping glazed windows and patio doors to give a modern and contemporary feel to the property.
The main roof of the house was extended to form a canopy of the house.The side wall of the extension was extended to create a sloping boundary wall. At the rear a large patio area face the south facing garden .Render finish on the extension match with the existing house and overall create a harmony and result in a charming home.
Project value: £150,000
